6 Sanctuary Pl, Templestowe, VIC, 3106
Living in the heart of Templestowe
- 5
- 3
- 4
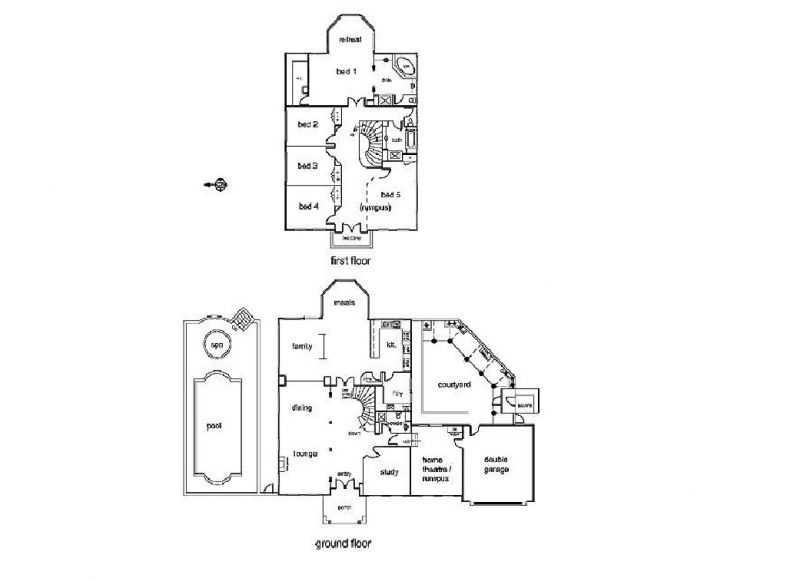
Nestled in the prestigious Templestowe, this meticulously renovated residence offers a harmonious blend of modern luxury and family-friendly functionality. With a striking granite kitchen with multiple living zones, and an expansive outdoor area complete with a swimming pool, this home is perfect for those seeking a high-quality lifestyle.
See below for property features:
- Five bedrooms throughout the property
- Three bathrooms that have recently beed updated with contemporary fixtures and finishes.
- Double garage and additional off-street parking for convenience.
- Freshly painted interiors, brand-new carpets, and upgraded fittings throughout.
- Overlooking a light-filled family meals area, ideal for everyday living and entertaining.
- Three distinct living areas with versatile spaces, including formal and informal living zones, catering to all family dynamics.
- A sparkling in-ground pool surrounded by lush landscaping, offering a perfect setting for relaxation or entertainment.
- A vast, fully landscaped garden, ideal for outdoor activities or creating your own private sanctuary.
*Regular pool maintenance will be included at the cost of the renters.
*Regular garden maintenance will be included at the cost of the renters.
*You must register to inspect the property. Please click "Book Inspection" so we can keep you informed of inspection times and changes*
* YOU CONSENT TO THE USE OF YOUR INFORMATION FOR INDICATIVE PURPOSES ONLY
- 5
- 3
- 4
Location Map
Make an Enquiry
Make an Enquiry
* YOU CONSENT TO THE USE OF YOUR INFORMATION FOR INDICATIVE PURPOSES ONLY










