2/35 Strathalbyn St, Kew East, VIC, 3102
Refined Blend Of Spacious Living With An Abundance Of Natural Light
- 2
- 1
- 1
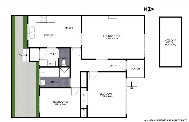
This prominent two bedroom unit offers a refined blend of spacious living with an abundance of natural light. The home is accentuated by the timber flooring, creating a harmonious flow between the living and bedroom areas which are flooded with Northern light. This seamless connection extends to a private back area which is surrounded by low - maintenance gardens, offering an exceptional space for both relaxation and entertaining.
See below for property features:
- Generously proportioned, north-facing living room, flooded with natural light
- Two bedrooms, each featuring built-in wardrobes
- Central bathroom, complete with a bath and shower combination
- Sleek kitchen and meals area, equipped with a Euro stainless steel 4-burner cooktop
- Separate powder room and laundry, opening to a private courtyard
- Secure carport for convenient parking
- Split-system air conditioning ensuring comfort throughout the year
Ideally positioned in one of Kew’s most desirable pockets, this residence offers unrivalled convenience and access to local amenities. It is moments from esteemed educational institutions and places of worship, ensuring both comfort and accessibility. For outdoor enthusiasts, the nearby Reservoir Reserve dog-off-leash area and the picturesque Outer Circle Linear Park provide exceptional recreational opportunities. The property is also within walking distance of Burke Road (Tram Stop 42), offering seamless connectivity to the city, and is just a short distance from the tranquil expanses of Victoria Park, further enhancing the appeal of this highly sought-after location.
This exceptional property presents an unparalleled opportunity for those seeking practicality and an enviable location.
*You must register to inspect the property. Please click "Book Inspection" so we can keep you informed of inspection times and changes*
* YOU CONSENT TO THE USE OF YOUR INFORMATION FOR INDICATIVE PURPOSES ONLY
- 2
- 1
- 1
Location Map
Make an Enquiry
Make an Enquiry
* YOU CONSENT TO THE USE OF YOUR INFORMATION FOR INDICATIVE PURPOSES ONLY










